Farm Airbnb living
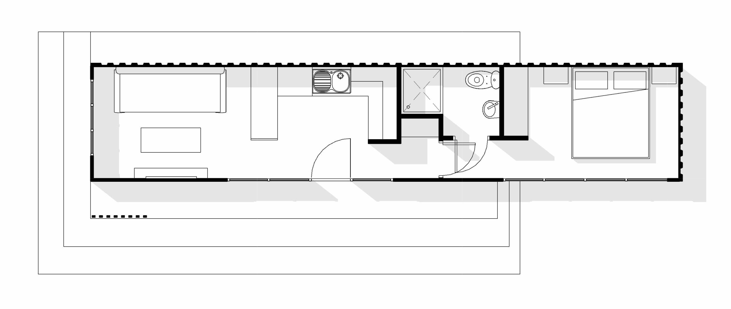
A visionary farm owner in Kinshasa is taking sustainable living to the next level with the creation of a one-of-a-kind container home. Perfect for an Airbnb getaway, this studio-style home is made from a repurposed 40-foot shipping container, offering ample living spaces for guests. Inside, you’ll find a cozy living room, a dining area for enjoying meals, a fully equipped kitchen, a refreshing shower, and a comfortable master bedroom.
This unique project is not only a smart use of resources, but also offers a welcoming and inviting space for visitors to the farm.
.


















