Project Information
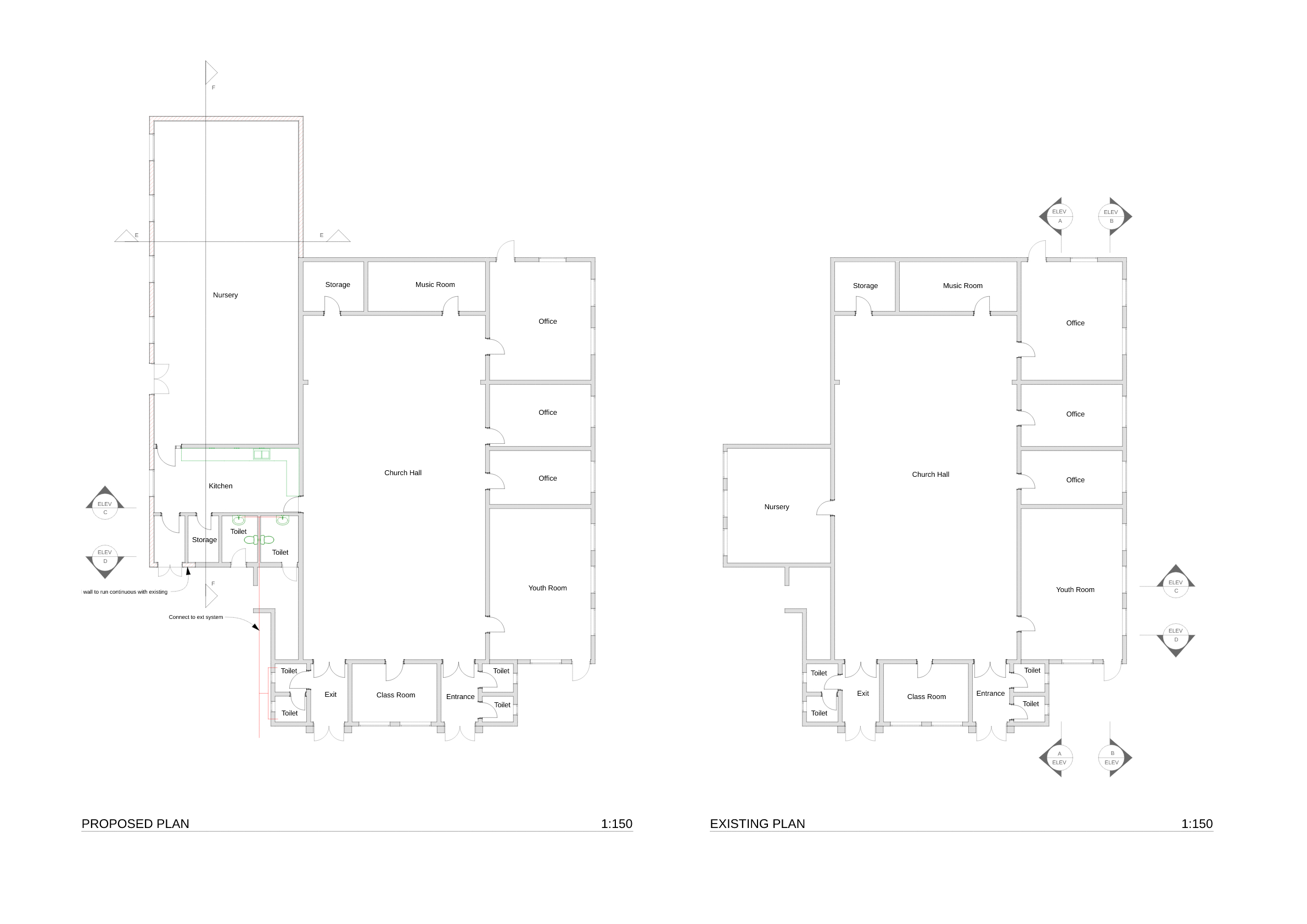
The Church Extension Project is a 3D design study that explores the possibilities of extending an existing church to incorporate a nursery for the local community. The focus of the project is on the exterior aspect of the building and how the new extension can blend seamlessly with the existing structure. The design team considered the architectural style and materials of the existing church, as well as the surrounding community and context, to create an extension that complements the existing building.
The 3D model of the proposed extension includes a nursery with ample space for children’s activities and a play area. The design also includes a separate entrance for the nursery, to ensure privacy and safety for the children. The extension is connected to the main church building through a walkway, providing easy access for the families and church members who will use the nursery.









